Одноэтажный дом с двускатной крышей, представляет собой классический вариант загородного дома. Двускатная крыша гармонично сочетается с окружающим ландшафтом.
Дом рассчитан на проживание семьи из 4-6 человек.
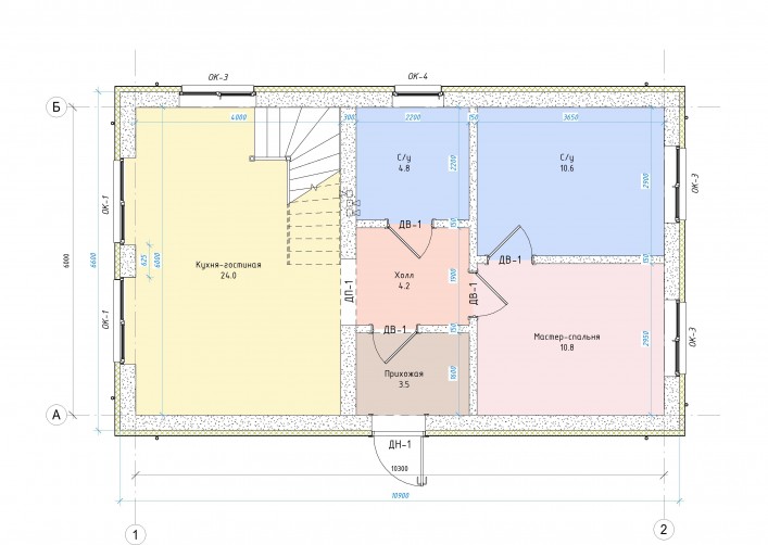
Объемо-планировочные решения дома вмещают просторную кухню-гостиную с большими панорамными окнами второй свет, мастер-спальню на первом этаже, санузел и прихожую. На втором этаже общее пространство с возможностью расположить две спальни и ванную.
Фасад - декоративная штукатурка
Комплектация STANDART - 6 850 000 р.
Комплектация WHITE BOX - 8 400 000 р.
Фасад - облицовочный кирпич
Комплектация STANDART - 7 300 000 р.
Комплектация WHITE BOX - 8 850 000 р.
Выбор местоположения
Мы свяжемся с Вами в течение дня.