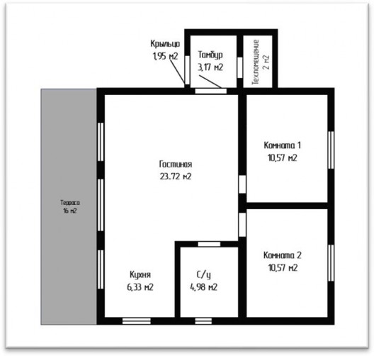
«Надежда» 88,2 м² уютный одноэтажный дом «Анна» — это современное решение для комфортной жизни небольшой семьи. Общая площадь дома составляет 88,2 квадратных метра, что позволяет разместить все необходимые помещения для полноценного проживания.
Дом «Анна» — это гармоничное сочетание функциональности, комфорта и современного дизайна, создающее идеальные условия для счастливой жизни вашей семьи.
Комплектации:
ДОМОКОМПЛЕКТ 1 275 000 р.
СТАНДАРТ 3 700 000 р.
КОМФОРТ 5 100 000 р.
КОМФОРТ+ 6 400 000 р.
Выбор местоположения
Мы свяжемся с Вами в течение дня.